O 3D Workflow é um curso completo para empresas de Comunicação Visual que desejam padronizar seu processo de criação, planejamento e execução de fachadas comerciais dentro do SketchUp, usando um método eficiente, visual e altamente replicável.
A partir de
O curso é ministrado por 3 instrutores especialistas em projetos e planejamento de fachadas, com suporte técnico de mais 2 profissionais responsáveis pelo desenvolvimento de plugins e Estruturas Inteligentes — componentes dinâmicos parametrizados que são entregues aos alunos para uso direto no SketchUp.
Você aprenderá, passo a passo, a implantar o fluxo de trabalho 3D completo, desde a apresentação realista até o projeto executivo, com foco total na aplicação prática e no resultado final:
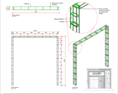
Durante o curso, você terá acesso às Estruturas Inteligentes, que são componentes paramétricos prontos para uso: tubos, travessas, chapas, cantoneiras e muito mais. Basta inserir no SketchUp, configurar os parâmetros e gerar o planejamento automaticamente. Essas estruturas economizam tempo e evitam erros comuns na criação de projetos técnicos. É como ter uma biblioteca de engenharia adaptada à realidade da Comunicação Visual.







Ideal para empresas de Comunicação Visual, designers e profissionais técnicos que:
Veja os resultados alcançados por nossos alunos
Quando entrei na Plastec, em fevereiro, nunca tinha tido contato com o SketchUp. Iniciei o curso 3D Workflow logo no segundo dia de trabalho. Ele foi essencial para minha evolução. Em poucos meses, passei de iniciante total a conseguir desenvolver projetos completos, do zero até a entrega. Aqui na empresa, adaptamos um pouco a metodologia à nossa realidade, mas o curso foi essencial para esse processo. Também conto com o apoio constante do meu diretor Rafael, que tem um conhecimento vasto e sempre me orienta. Com um mês dedicado em assistir as aulas e praticar com os projetos que temos em aberto, consegui me tornar o projetista da empresa, e grande parte disso se deve ao conteúdo e à didática do curso.
Hoy somos capaces de producir más de 100 estructuras por semana, en metalon o aluminio. Crear cientos de diseños de muebles y stands para eventos. Producción 100% acelerada y eficaz, con margen de error mínimo y gran aprovechamiento de material.
Incrivel posso afirma que foi uns dos melhores curso que ja comprei ate hj recomendaria o curso para toda mundo que atua na mesma area sem duvidas.
Mesmo sem experiência prévia, consegui dominar o SketchUp e as técnicas de renderização. O método passo a passo facilita muito o aprendizado.
R$ 3.997,00
Sua conexão direta com instrutores e alunos experientes.
Conteúdo de download para facilitar o seu processo de aprendizado.
Todo mês você participa de uma reunião para tirar dúvidas e receber atualizações.
Biblioteca de estruturas já parametrizadas para você projetar mais rápido e extrair informações importantes.
Barra de ferramentas para extrair lista de corte, quantitativo, criar vistas e etiquetas automaticamente.
Albuns e templates de detalhamento para acelerar a forma como você faz o projeto executivo.
3 módulos • 23 aulas • 10h de conteúdo
Ecossistema Trimble
28:15min
Fluxo de trabalho com SketchUp
15:30 min
Estruturas dinâmicas
15:30 min
Lista de corte
15:30 min
Modelagem avançada ACM3D
15:30 min
Planificação
15:30 min
Arquivos práticos - Módulo 1
3 arquivos
Introdução ao SketchUp LayOut
26:45 min
Primeiros passos : Ferramentas e comandos
35:20 min
Personalizando as pranchas técnicas e carimbos
28:15 min
Preparando o arquivo para o detalhamento
28:15 min
Conceituação: Elevação da fachada (Perspectivas e isometrias técnicas)
28:15 min
Detalhamento: Criando plantas e vistas técnicas
28:15 min
Detalhamento: Estruturas metálicas
28:15 min
Metodologia de projeto
28:15 min
Organização de arquivos
28:15 min
Otimização no SketchUp
28:15 min
Detalhamento executivo: Plantas e vistas técnicas de fachadas, Estrutura metálica, ACM 3D
28:15 min
Projeto prático - Fachada completa
5 arquivos
Fragmentação do 3D.
22:30 min
Criação de Paineis perfurados a partir de DWG.
18:45 min
Personalizando escalas diferentes em painéis.
18:45 min
Criando painéis perfurados a partir de imagens.
18:45 min
Transformando formas em Painéis executáveis.
18:45 min
Biblioteca de materiais comerciais
12 arquivos
Esse é o resultado de investir nesse treinamento, obter a capacidade de desenvolver projetos executivos precisos e eficientes.
SketchUp + LayOut 2023
Especificações recomendadas: Processador Intel/Amd 2.8 GHz ou superior. 8 GB de RAM ou mais. Pelo menos 1 GB de espaço em disco disponível.
Todo processo de pagamento é intermediado pela hotmart, a plataforma mais segura para compra de produtos digitais do mundo.
Você pode pagar no boleto ou PIX à vista ou no cartão em até 12 vezes com acréscimo de parcelamento.
Após o pagamento, você recebe um e-mail de confirmação contendo um botão que vai te encaminhar para nossa área de membros, onde criará uma nova senha de acesso, depois é só acessar o conteúdo com o e-mail usado na compra e a senha criada.
Em caso de dúvidas durante o curso, temos um grupo no Whatsapp onde pode mandar suas dificuldades e os instrutores e outros alunos podem apresentar uma solução. Também terá contato direto com a equipe de suporte por Whatsapp. O Suporte é garantido por 1 ano.
Ainda tem dúvidas? Entre em contato pelo WhatsApp
Junte-se a centenas de profissionais que já estão colhendo os frutos de ter um processo otimizado e automatizado de produção.
Formas de pagamento: cartão de crédito, boleto e PIX
Teste o curso por 7 dias. Se não gostar do conteúdo ou metodologia, devolvemos 100% do seu investimento sem questionamentos.
Formas de pagamento: cartão de crédito, boleto e PIX
Teste o curso por 7 dias. Se não gostar do conteúdo ou metodologia, devolvemos 100% do seu investimento sem questionamentos.
Aproveite nossa oferta de lançamento com 23% OFF em todos os cursos. Copie o CUPOM e cole no checkout do curso desejado.